













InBloom
Лагус Анастасия, Абзалов Дархан
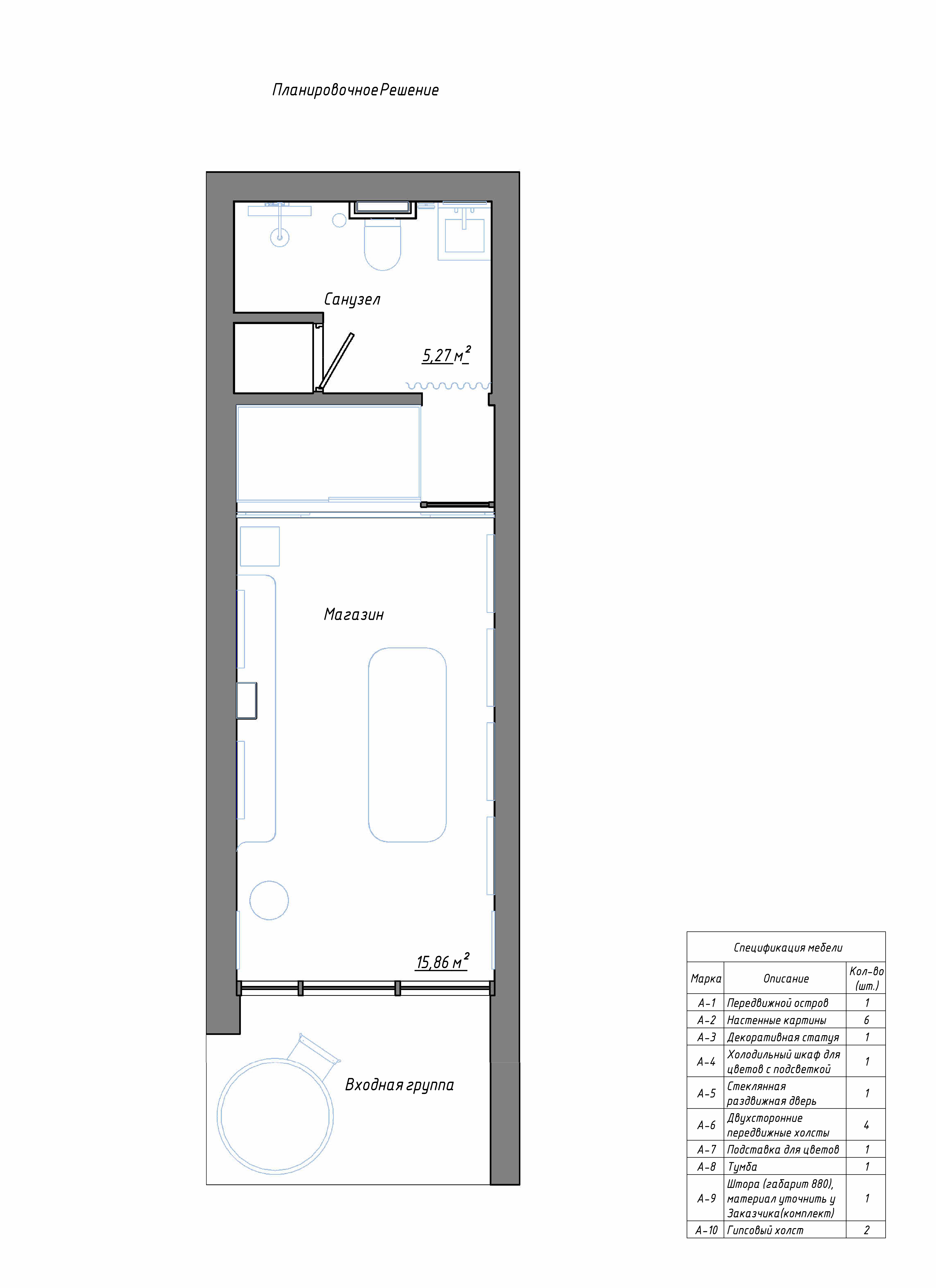
Метраж: 24м2
Наш проект «INBLOOM» — это пространство площадью 24 м², которое воплощает идею гибридной функциональности и эстетики. Расположенный на первом этаже многоквартирного дома в Черногории, этот объект был разработан для ландшафтного архитектора, которая мечтала о собственном флористическом бутике, способном трансформироваться в творческую галерею для проведения выставок и воркшопов. Главной задачей было совместить множество функций на ограниченной площади, сохранив при этом концепцию, заданную клиентом. Мы применили принципы гибридного пространства и японской функциональности. Центральным элементом стал передвижной мраморный остров-столешница, который можно легко перемещать, освобождая место для мероприятий. Двусторонние холсты позволяют мгновенно менять настроение интерьера: с ярко-красной стороны на нейтральную бежево-белую, идеально сливающуюся со стенами. Для оптимизации пространства мы использовали несколько нестандартных решений. Холодильный шкаф для цветов интегрирован в стену, а раздвижная стеклянная дверь в санузел не занимает лишнего места. В санузле мы создали яркий, минималистичный дизайн с белой плиткой и красными акцентами, такими как рама зеркала. Стиральная машина и сушилка установлены в колонну, что экономит площадь. Мягкое галерейное освещение над профессиональными креплениями для картин создает идеальные условия для выставок. Красный цвет на потолке и в декоре, а также мраморная столешница с подсветкой и скульптуры, добавляют уникальности. В результате нам удалось создать уникальное и функциональное пространство, которое привлекает внимание своим дизайном. Четкое видение клиента помогло нам в работе и сократило сроки, что позволило превратить обычное помещение в многофункциональный и вдохновляющий объект.
